Slideshow

Slide 1 selected
front2.png
before-front2-img_0709.png
Aging in Arlington
Arlington, VA
  • front2.png
  • backhouse.png
  • front.png
  • frontside.png
  • backhouse2.png
  • side.png
  • side2.png
  • treeview.png
  • burns-plans-7-21-23-a100.png
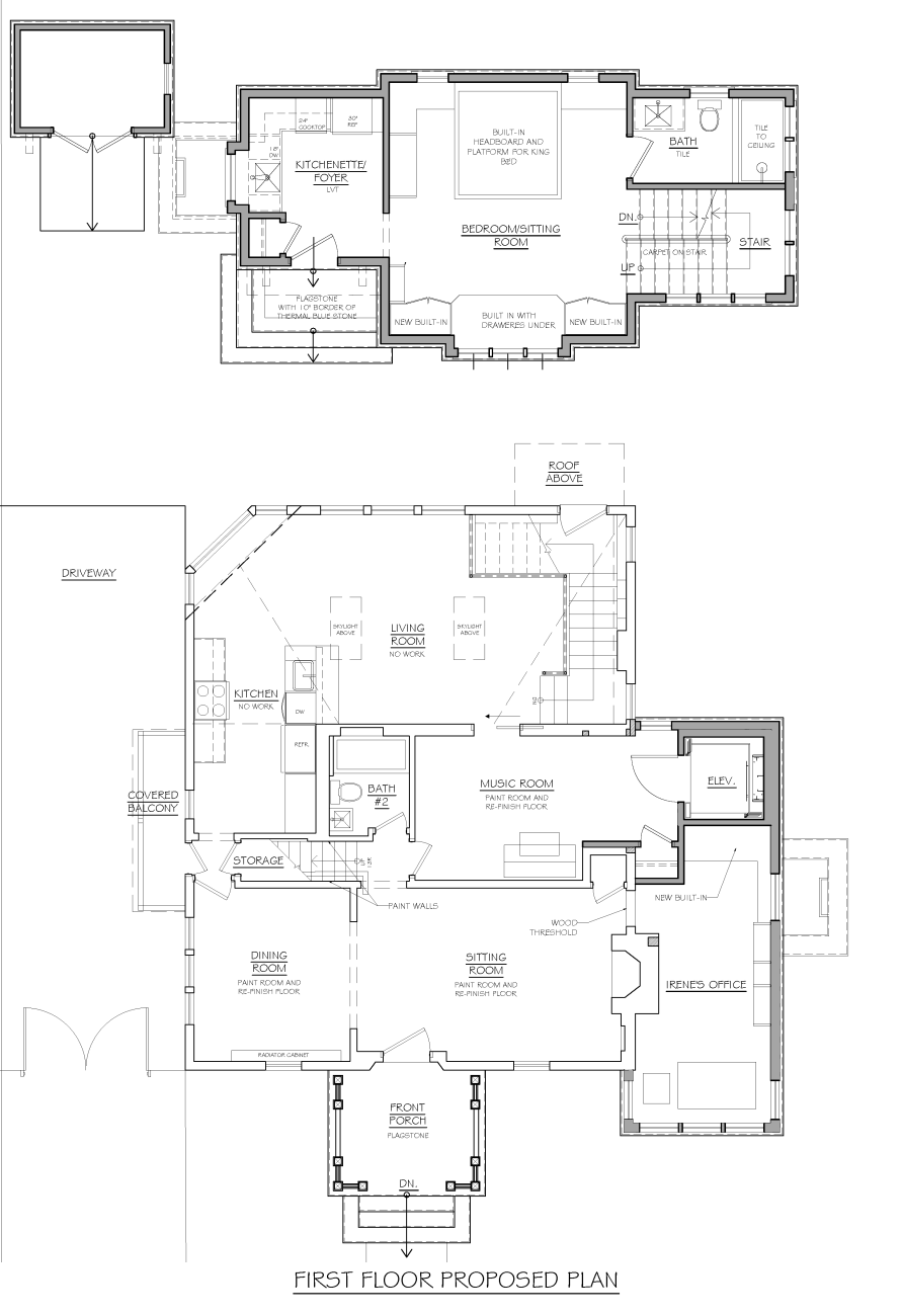
  • burns-plans-7-21-23-a101.png
  • burns-plans-7-21-23-a102.png